Porzione di quadrifamiliare in vendita

Vaprio D'Adda, Via Roma
€ 279.000
3 locali 3 locali
130 Mq 130 Mq
2 bagni 2 bagni

Porzione di quadrifamiliare in vendita

Vaprio D'Adda, Via Roma

Descrizione annuncio

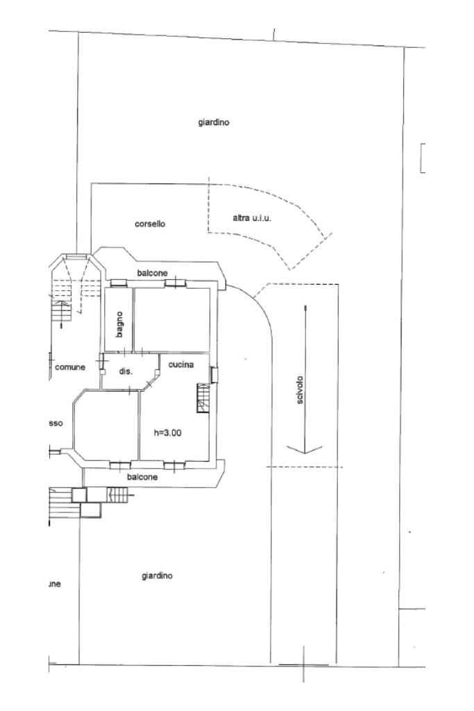
VAPRIO D’ADDA – TRILOCALE CON GIARDINO, TAVERNA E BOX DOPPIO

Proponiamo in centro paese e a pochi passi dai principali servizi, trilocale in villa libero su tre lati e senza spese condominiali, con taverna, box doppio in larghezza ed ampio giardino.

La soluzione è così composta: entrando troviamo l’ingresso che collega le due camere matrimoniali con accesso diretto al balcone di pertinenza, successivamente il generoso bagno finestrato con box doccia.

La zona giorno open space è fornita di una comoda cucina a vista con zona living, anch’essa con porta finestra dalla quale si può accedere al giardino privato di circa 700mq.

Scendendo le scale accediamo alla taverna dalle generose metrature adibita a zona hobby e con un locale lavanderia, successivamente accesso diretto al box doppio di circa 30mq con doppia basculante.

L’immobile è completo di ogni confort:

- serramenti in pvc doppio vetro;

- zanzariere su tutti gli infissi;

- persiane in pvc;

- condizionatori caldo/freddo in tutti gli ambienti;

- caldaia autonoma a condensazione;

- allarme perimetrale e volumetrico comprensivo di video sorveglianza;

- piscina esterna;

- l’intero arredo ad eccezione degli effetti personali.

Mostra tutto

Nelle vicinanze

Trasporto pubblico Trasporto pubblico
Via Perego - Via Cimitero (Vaprio d'Adda)
Via Perego - Via Cimitero (Vaprio d'Adda)
310 m
Via Marconi, 60 (Vaprio d'Adda)
Via Marconi, 60 (Vaprio d'Adda)
470 m
Ricariche auto elettriche Ricariche auto elettriche
Evbility Comune di Canonica d'Adda
940 m
Bennet Vaprio d'Adda
990 m
Scuole Scuole
Scuole
360 m
Scuola dell'infanzia e primaria
2,8 Km
Farmacia Farmacia
Farcom Farmacia Comunale
670 m
Farmacia Peschiulli
980 m
Farmacia
2,1 Km
Parafarmacia Conad
2,6 Km
Ospedali Ospedali
Ospedale di Vaprio d'Adda
560 m
Supermercati Supermercati
Mercato di Vaprio d'Adda
300 m
Conad
1,0 Km
Bennet
1,0 Km
Negozi Negozi
Negozi
2,1 Km
Bar Bar
Il baricentro
940 m
On The Road
2,0 Km
Bar
2,1 Km
Pandora
2,1 Km
Amigdala
2,2 Km
Ristoranti Ristoranti
Al Ghess
430 m
Da Quei Due
660 m
Bella Napoli - Pizzeria d'asporto
920 m
La Base
1,3 Km
Pizzeria da asporto "Le Piramidi"
2,1 Km
Mostra tutto

Caratteristiche

Rif.:
61176153
Piano:
Basso di 1
Totale piani:
1
Box:
2
Posti auto:
1
Balconi:
1
Mostra tutto
Prezzo Prezzo
€ 279.000
Rata mutuo Rata mutuo
€ 1.322 / mese
Spese annue Spese annue
€ 0
Proponi il tuo prezzoProponi il tuo prezzo

Classe Energetica

D
D
D
D
D
D
D
D
D
EP globale non rinnovabile:
205.59 kW h/m² anno
EP invernale del fabbricato:
EP estiva del fabbricato:
Anno di costruzione:
1972
Riscaldamento:
Autonomo
Tipo impianto:
A radiatori
Tipo alimentazione:
Metano

Ti interessa visionare l'immobile?

Fissa un appuntamento  Fissa un appuntamento

Richiedi informazioni

Clicca su Leggi per aprire l'informativa
* Questi campi sono obbligatori

Calcola il tuo mutuo

Semplice e senza impegno
Anticipo

( % )
Mutuo

( % )

pochi semplici passi

inserisci i tuoi dati
Questionario completato
Grazie per aver richiesto un appuntamento senza impegno con un nostro Consulente del Credito e Assicurativo.

Hai inserito correttamente tutti i dati necessari e a breve riceverai una e-mail con un link da convalidare per inviare i tuoi dati.
Affiliato
Leuca Srl
P.zza Chiesa, 15/16 20069 Vaprio D'Adda (MI)

Il nostro staff


  • Matteo Manca
    Affiliato

  • Mohamed Loutfi Eladl Elmadi Eladl
    Collaboratore

  • Nadia Manna
    Collaboratrice

  • Elisa Spinoni
    Coordinatrice
P.zza Chiesa, 15/16 20069 Vaprio D'Adda (MI)
Zona: Vaprio d'Adda - Pozzo d'Adda - Bettola - Trezzano Rosa
Mostra su mappa
Affiliato
Leuca Srl
P.zza Chiesa, 15/16 20069 Vaprio D'Adda (MI)

2026 Tecnocasa Franchising S.p.A. - P. IVA 08365160152 - Via Monte Bianco 60/A 20089 Rozzano (MI). Ogni agenzia ha un proprio titolare ed è autonoma. Privacy policy | Policy utilizzo | Cookie policy