Bilocale in vendita

Vaprio D'Adda, Via Natale Perego
€ 159.000
2 locali 2 locali
101 Mq 101 Mq
1 bagno 1 bagno

Bilocale in vendita

Vaprio D'Adda, Via Natale Perego

Descrizione annuncio

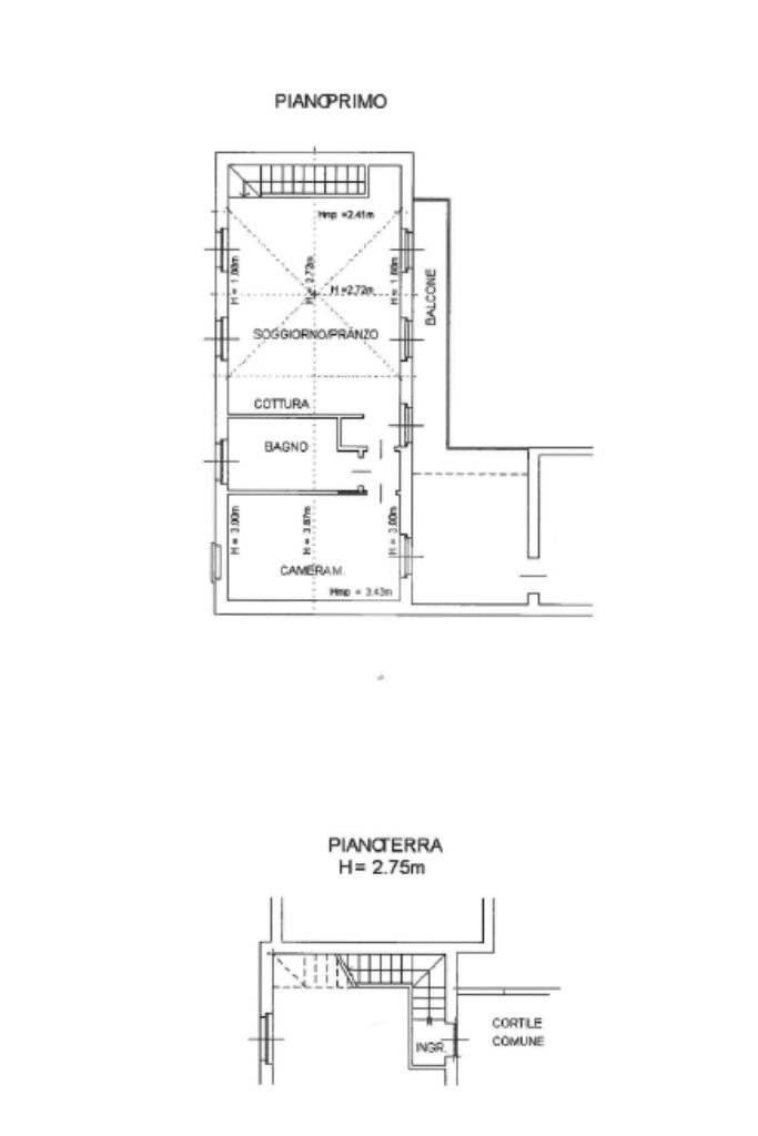
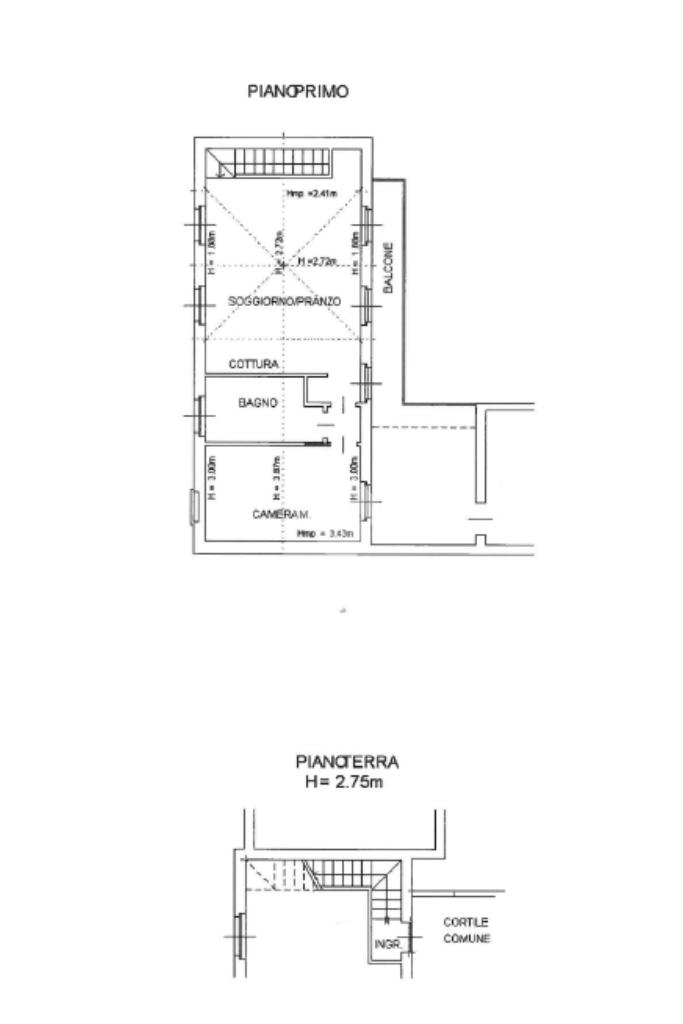
VAPRIO D’ADDA – BILOCALE COMPLETAMENTE ARREDATO CON TERRAZZO, CANTINA E BOX

In pieno centro paese, a pochi passi da tutti i principali servizi, proponiamo grazioso bilocale sapientemente ristrutturato in classe energetica C, situato al primo ed ultimo piano impreziosito da travi a vista, libero su tre lati, completo di terrazzo, ripostiglio, cantina e box singolo.

L’appartamento si apre su un ampio e luminoso soggiorno con cucina open space, rifinito con cura nei minimi dettagli. La zona living gode di accesso diretto al balcone privato, collegato ad uno splendido terrazzo di 17 mq, ideale per momenti di relax all’aperto, completo anche di pratico ripostiglio coperto.

Attraverso il disimpegno si accede alla zona notte, composta da un generoso bagno finestrato con box doccia e da una spaziosa camera matrimoniale con porta finestra.

L’immobile viene venduto completo di arredo e mobilio da esterno per il terrazzo. È dotato di serramenti in legno con doppio vetro, zanzariere ad ogni infisso, persiane in alluminio, videocitofono, caldaia autonoma a condensazione, riscaldamento a pavimento ed impianto di aria condizionata caldo/freddo in ogni ambiente.

Completano la proprietà una comoda cantina piastrellata di 25 mq sfruttabile come palestra privata ed un box singolo nelle immediate vicinanze che rendono questa soluzione abitativa ideale sia come prima casa che come investimento.

Mostra tutto

Nelle vicinanze

Trasporto pubblico Trasporto pubblico
Via Perego - Via Cimitero (Vaprio d'Adda)
Via Perego - Via Cimitero (Vaprio d'Adda)
160 m
Via Marconi, 60 (Vaprio d'Adda)
Via Marconi, 60 (Vaprio d'Adda)
540 m
Ricariche auto elettriche Ricariche auto elettriche
Bennet Vaprio d'Adda
860 m
Evbility Comune di Canonica d'Adda
860 m
Scuole Scuole
Scuole
160 m
Scuola dell'infanzia e primaria
2,9 Km
Farmacia Farmacia
Farcom Farmacia Comunale
500 m
Farmacia Peschiulli
960 m
Farmacia
2,1 Km
Parafarmacia Conad
2,8 Km
Ospedali Ospedali
Ospedale di Vaprio d'Adda
350 m
Supermercati Supermercati
Mercato di Vaprio d'Adda
270 m
Bennet
890 m
Conad
990 m
Negozi Negozi
Negozi
2,1 Km
Bar Bar
Il baricentro
770 m
On The Road
2,1 Km
Bar
2,1 Km
Pandora
2,1 Km
Amigdala
2,4 Km
Ristoranti Ristoranti
Al Ghess
300 m
Da Quei Due
470 m
Bella Napoli - Pizzeria d'asporto
770 m
La Base
1,2 Km
Pizzeria da asporto "Le Piramidi"
2,1 Km
Mostra tutto

Caratteristiche

Rif.:
61177151
Piano:
2 di 3 (Piano medio)
Box:
1
Balconi:
1
Terrazzi:
1
Camere da letto:
1
Mostra tutto
Prezzo Prezzo
€ 159.000
Rata mutuo Rata mutuo
€ 738 / mese
Spese annue Spese annue
€ 800
Proponi il tuo prezzoProponi il tuo prezzo

Classe Energetica

C
C
C
C
C
C
C
C
C
EP globale non rinnovabile:
170.57 kW h/m² anno
EP invernale del fabbricato:
EP estiva del fabbricato:
Anno di costruzione:
1967
Riscaldamento:
Autonomo
Tipo impianto:
A pavimento
Tipo alimentazione:
Metano

Ti interessa visionare l'immobile?

Fissa un appuntamento  Fissa un appuntamento

Richiedi informazioni

Clicca su Leggi per aprire l'informativa
* Questi campi sono obbligatori

Calcola il tuo mutuo

Semplice e senza impegno
Anticipo

( % )
Mutuo

( % )

pochi semplici passi

inserisci i tuoi dati
Questionario completato
Grazie per aver richiesto un appuntamento senza impegno con un nostro Consulente del Credito e Assicurativo.

Hai inserito correttamente tutti i dati necessari e a breve riceverai una e-mail con un link da convalidare per inviare i tuoi dati.
Affiliato
Leuca Srl
P.zza Chiesa, 15/16 20069 Vaprio D'Adda (MI)

Il nostro staff


  • Matteo Manca
    Affiliato

  • Mohamed Loutfi Eladl Elmadi Eladl
    Collaboratore

  • Nadia Manna
    Collaboratrice

  • Elisa Spinoni
    Coordinatrice
P.zza Chiesa, 15/16 20069 Vaprio D'Adda (MI)
Zona: Vaprio d'Adda - Pozzo d'Adda - Bettola - Trezzano Rosa
Mostra su mappa
Affiliato
Leuca Srl
P.zza Chiesa, 15/16 20069 Vaprio D'Adda (MI)

2026 Tecnocasa Franchising S.p.A. - P. IVA 08365160152 - Via Monte Bianco 60/A 20089 Rozzano (MI). Ogni agenzia ha un proprio titolare ed è autonoma. Privacy policy | Policy utilizzo | Cookie policy