Villa a schiera d'angolo in vendita

Trezzano Rosa, Via Rodari
€ 419.000
4 locali 4 locali
220 Mq 220 Mq
4 bagni 4 bagni

Villa a schiera d'angolo in vendita

Trezzano Rosa, Via Rodari

Descrizione annuncio

TREZZANO ROSA – VILLA DI TESTA CON TAVERNA, GIARDINO E BOX

Situata in contesto signorile e posta in centro paese, proponiamo villa di testa libera su tre lati, senza spese condominiali e ristrutturata internamente di recente.

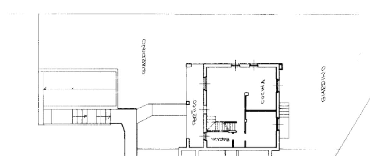
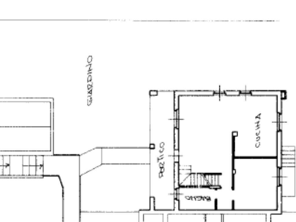
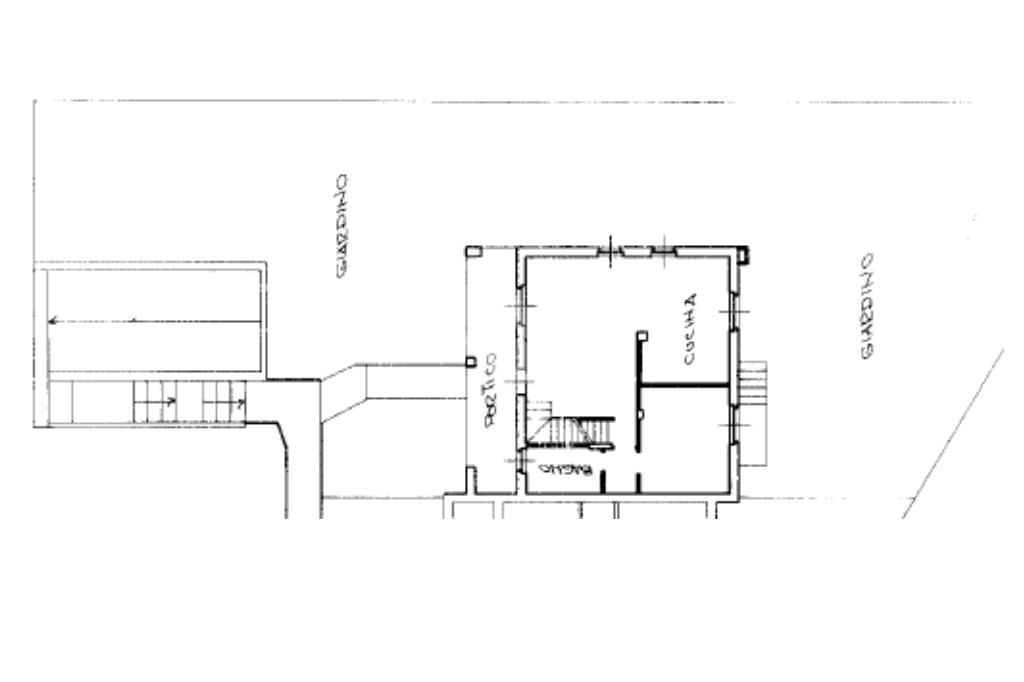
La soluzione è composta da un’entrata indipendente, al piano terra troviamo un ampio e luminoso soggiorno con cucina open space ad isola dal quale possiamo accedere al giardino di proprietà di circa 300mq completo di veranda e barbecue in muratura; proseguendo il disimpegno troviamo ripostiglio e bagno finestrato con box doccia.

Salendo al livello superiore la zona notte offre una generosa camera matrimoniale con cabina armadio e bagno privato, successivamente due camere collegate dal balcone in comune ed un terzo bagno con vasca completo di porta finestra con affaccio allo sfogo esterno.

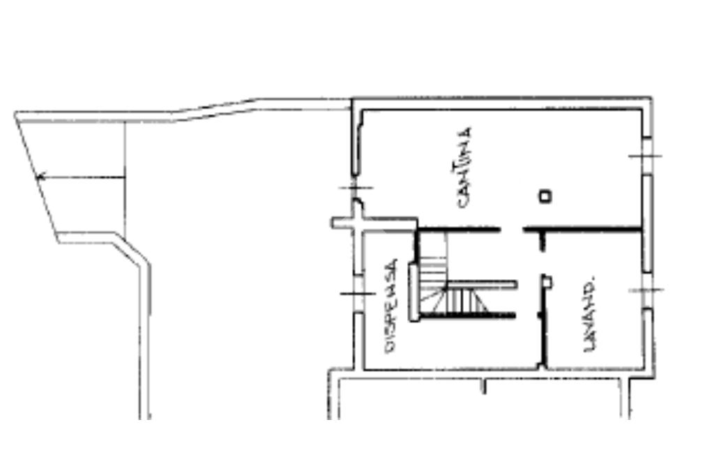
Scendendo al piano semi-interrato troviamo una generosa taverna con cucina e stufa a pellet, per goderne nelle stagioni più fredde per cene e feste con amici. Proseguendo una spaziosa lavanderia ed un secondo sgabuzzino.

L’abitazione viene venduta con cucina alla cifra esposta, la caldaia, sostituita di recente, è autonoma e a condensazione, inoltre è presente l’impianto d’allarme volumetrico e perimetrale, condizionatore caldo-freddo in ogni ambiente e impianto di irrigazione per il verde esterno.

Infine un comodo box auto coperto.

Mostra tutto

Nelle vicinanze

Trasporto pubblico Trasporto pubblico
Trezzano Rosa, via Dante
Trezzano Rosa, via Dante
310 m
Trezzano Rosa, Via Milano
Trezzano Rosa, Via Milano
370 m
Scuole Scuole
Scuola Primaria Mahatma Gandhi
440 m
Scuole
660 m
Istituto Comprensivo di Basiano
1,3 Km
Scuola dell'infanzia e primaria
1,7 Km
Scuola Secondaria di Masate
2,2 Km
Farmacia Farmacia
Farmacia Foffano
300 m
Farmacia Comunale
1,2 Km
Farmacia
1,7 Km
Supermercati Supermercati
U2
100 m
Silvana
1,4 Km
Supermercati
1,5 Km
Negozi Negozi
Pirola
70 m
Negozi
1,7 Km
Bar Bar
Bar
720 m
On The Road
1,6 Km
Pandora
1,7 Km
River Bar
2,1 Km
il nuovo bar di Fulvio
2,2 Km
Ristoranti Ristoranti
La voglia matta
1,1 Km
Rock Cafè
1,4 Km
Da Claudio
1,4 Km
L'officina
1,6 Km
Ristoranti
1,6 Km
Mostra tutto

Caratteristiche

Rif.:
61147067
Piano:
1 di 1 (Piano su più livelli)
Box:
1
Balconi:
2
Camere da letto:
3
Arredamento:
Parziale
Mostra tutto
Prezzo Prezzo
€ 419.000
Rata mutuo Rata mutuo
€ 1.978 / mese
Spese annue Spese annue
€ 0
Proponi il tuo prezzoProponi il tuo prezzo

Classe Energetica

B
B
B
B
B
B
B
B
B
EP invernale del fabbricato:
EP estiva del fabbricato:
Anno di costruzione:
2000
Riscaldamento:
Autonomo
Tipo impianto:
A radiatori
Tipo alimentazione:
Metano

Ti interessa visionare l'immobile?

Fissa un appuntamento  Fissa un appuntamento

Richiedi informazioni

Clicca su Leggi per aprire l'informativa
* Questi campi sono obbligatori

Calcola il tuo mutuo

Semplice e senza impegno
Anticipo

( % )
Mutuo

( % )

pochi semplici passi

inserisci i tuoi dati
Questionario completato
Grazie per aver richiesto un appuntamento senza impegno con un nostro Consulente del Credito e Assicurativo.

Hai inserito correttamente tutti i dati necessari e a breve riceverai una e-mail con un link da convalidare per inviare i tuoi dati.
Affiliato
Leuca Srl
P.zza Chiesa, 15/16 20069 Vaprio D'Adda (MI)

Il nostro staff


  • Matteo Manca
    Affiliato

  • Mohamed Loutfi Eladl Elmadi Eladl
    Collaboratore

  • Giovanni Ligorio
    Collaboratore

  • Nadia Manna
    Collaboratrice

  • Elisa Spinoni
    Coordinatrice
P.zza Chiesa, 15/16 20069 Vaprio D'Adda (MI)
Zona: Vaprio d'Adda - Pozzo d'Adda - Bettola - Trezzano Rosa
Mostra su mappa
Affiliato
Leuca Srl
P.zza Chiesa, 15/16 20069 Vaprio D'Adda (MI)

2025 Tecnocasa Franchising S.p.A. - P. IVA 08365160152 - Via Monte Bianco 60/A 20089 Rozzano (MI). Ogni agenzia ha un proprio titolare ed è autonoma. Privacy policy | Policy utilizzo | Cookie policy